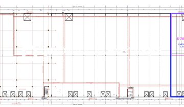
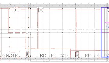
Depozit clasa A de inchiriat 702 mp
Prezentare generală
Simon, Iuga & partners, agentie din Cluj- Napoca specializata pe segmentul imobiliar de inchirieri spatii industriale, va propune spre inchiriere un spatiu tip hala productie/depozitare, zona aeroportului.
Hala are 702 mp utili, configurata in structura parter open-space destinat productiei/ depozitarii. Clasa energetica B.
Portile de acces sunt instalate si functionale.
Locurile de parcare sunt disponibile in curtea imprejmuita. Curtea este betonata. Toate utilitatile necesare sunt prezente.
Pretul de inchiriere solicitat este de 6.5 euro/ mp plus TVA, incluzand hala si terenul amenajat in fata incintei, la care se adauga o taxa de servicii de 1 euro/luna. Hala este disponibila pentru inchiriere.
Mai multe detalii regasiti pe site-ul nostru www.simonpartners.ro
Detalii
-
ID:2826454
-
Suprafață totală utilă (m²):702 m²
-
Preț (€):4563 (€)/lună
-
Status:
-
Etaje:2
-
Disponibilitate:Imediat
Facilități
- Acces auto
- Acces TIR
- Apa
- Canalizare
- Curent
- Curent trifazic (380V)
- Gaz
- Iluminat stradal
- La sosea
- Mijloace de transport in comun
- Parcare deschisa
- Posibilitate de compartimentare
- Sistem de alarma
- Strazi asfaltate
- Teren imprejmuit
- Usi de acces
- Vestiar






