Spatiu comercial de 97 mp de inchiriat Zorilor
Prezentare generală
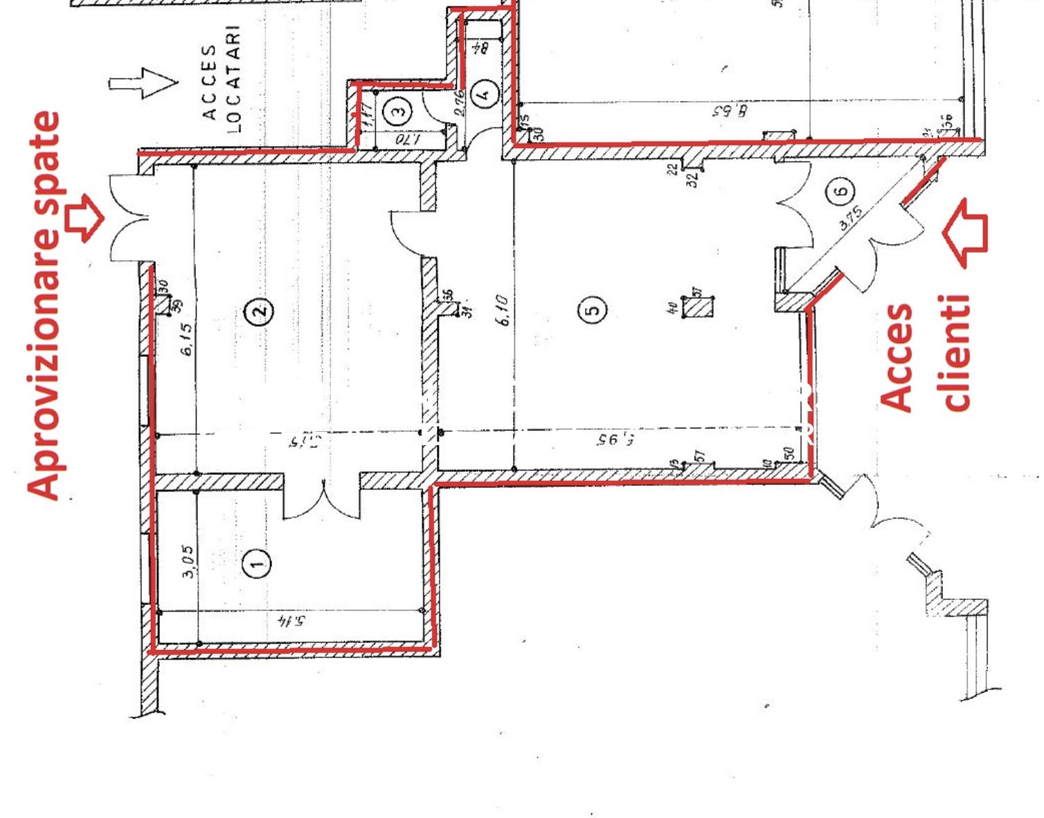
Simon, Iuga & partners, agentie specializata din Cluj- Napoca, cu birou si in Bucuresti, va propune spre inchiriere un spatiu comercial, situat in Cluj Napoca, zona pietei Zorilor..
Spatiul comercial este la parter, are o suprafata dedicata de 97 mp, partial compartimentat. Clasa energetica B. Disponibil la inchiriere din august, septembrie 2026.
Pretul de inchiriere este de 2500 euro/ luna, plus TVA. Anuntul este purtator de comision, pentru mai multe detalii va rugam sa accesati site-ul nostru www.simonpartners.ro
Detalii
-
ID:2922541
-
Suprafață totală utilă (m²):97 m²
-
Preț (€):2500 (€)/lună
-
An construcție:1980
-
Status:
-
Etaje:2
-
Disponibilitate:Imediat
Facilități
- Apa
- Canalizare
- Curent
- Gaz






