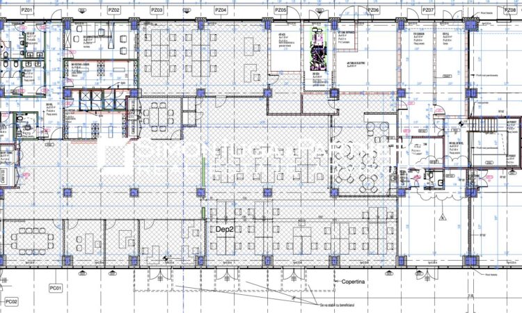
Parter birouri cladire clasa A
Prezentare generală
Simon, Iuga&Partners, agentie din Cluj- Napoca specializata pe segmentul inchirieri office, va propune spre inchiriere un spatiu de birouri central, intr-o clădire de birouri CLASA A, certificata BREAM, cu 4 nivele, ultramodernă, oferind toate avantajele poziționării într-o zona a orașului cu excelente conexiuni de transport.
Cladirea are fațade de tip cortină, cu sticlă tripan, prezentând un grad ridicat de protecție solară, parasolare, compartimentare flexibilă, instalații de climatizare/ventilatie cu aport de aer proaspăt. Accesul în clădire și în parcare se face controlat.
Accesul la complex se poate realiza atât cu majoritatea mijloacelor de transport în comun din oraș cât și cu mașina. Aceeași locație optima vǎ permite, de asemenea, să ajungeti rapid și eficient la partenerii dumneavoastra de afaceri, clienți, instituții publice sau private etc.
Materialele de calitate, instalațiile moderne, izolațiile la cele mai înalte standarde oferă un mediu de lucru plăcut, sigur și sănătos, reducând semnificativ cheltuielile de întreținere ale firmei.
Aditional valorii chiriei de 16 euro/mp/ luna plus TVA, se adauga o taxa lunara de servicii de 3,5 euro/ mp plus TVA, care incorporează în costuri servicii de iluminat si curatenie spatii comune, fatade, inclusiv curtea, gestionare deseuri, mentenanta lift, sisteme HVAC/ climatizare; paza permanenta 24/24. Clasa energetica A, cheltuieli intretinere open-book. Sunt disponibile 5-6 locuri de parcare la pretul de 75 de euro / loc/ luna plus Tva.
Pentru mai multe detalii va rugam sa accesati site-ul nostru www.simonpartners.ro
Detalii
-
ID:2291619
-
Suprafață construită (m²):560 m²
-
Suprafață totală utilă (m²):560 m²
-
Preț (€):8960 (€)/lună
-
An construcție:2019
-
Status:
-
Etaje:2
-
Disponibilitate:Imediat
Facilități
- Acces pentru persoane cu dizabilitati
- Administrare si management imobiliar
- Afisare logo pe cladire
- Building Management System
- Cafenea la parter
- Centrala termica
- Certificare Green Building
- Contorizare separata
- Control electric individual pe zona de birou
- Control individual AC pentru fiecare zona de birou
- Cortina de sticla
- Curatenie exterioara
- Curatenie parcare
- Curatenie spatii comune
- Echipamente moderne / silentioase
- Fatada ventilata
- Garaj subteran
- Generator de urgenta
- Grupuri sanitare amenajate si utilate
- Incarcator auto electrice
- indepartarea zapezii
- ingrijirea spatiilor verzi
- Internet
- Lift cu destinatie programata
- Receptie
- Restaurant in cladire
- Salubritate
- Server room cu rack, ventilatie, control acces
- Servicii de intretinere si reparatii lifturi
- Sistem climatizare 4 tevi
- Sistem de alarma
- Sistem de evacuare
- Sistem de ventilatie
- Sistem electric inteligent
- Sistem inteligent ascensoare
- Sistem modern de telecomunicatii
- Sursa principala de alimentare
- Telefon
- Unitati Split
- Vedere panoramica






